Maître d’œuvre

FevrierCarre Architectes

Agence TER (paysage), OTEIS (structure, fluides), G-ON (environnement), Urban Water (hydrologie) 

Maître d’ouvrage

ICADE Immobilier, APSYS, Nexhos

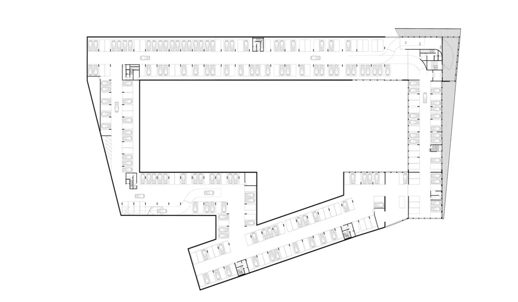
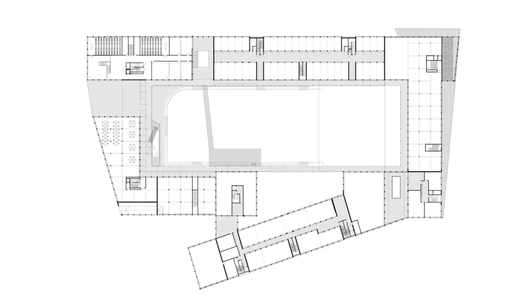
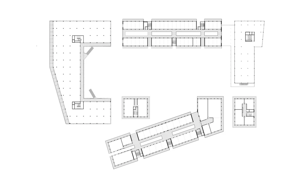
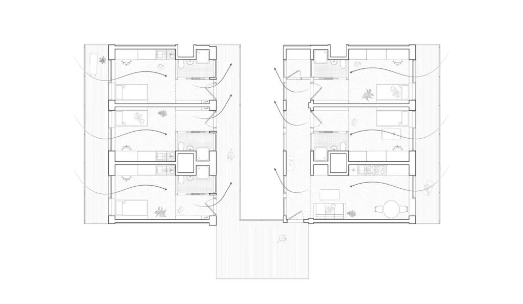
Programme

Co-schooling, co-living, bureaux

Surface

21 000 m2

Calendrier

Études en cours

Label

BDM argent, BREEAM excellent, Démarche Well & OsmoZ, BiodiverCity

Images

Metrochrome

Campus Racines

Sophia Antipolis, Valbonne (06)