Maître d’œuvre

FevrierCarre Architectes

BETEM (structure, fluides) 

Maître d’ouvrage

SPADA, Grand DELTA Habitat

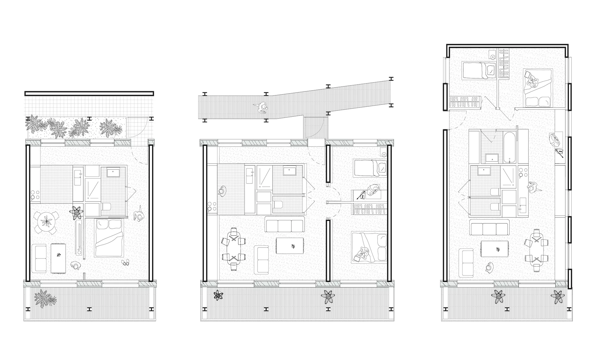
Programme

Logements, reposoir

Surface

1 528 m2

Calendrier

Concours

Label

BDM argent

Images

Metrochrome

Olivaie

La Trinité (06)